Skip to content
Menu
Home
About
Services
Construction
Land Planning
Pavement
Rehabilitation
Septic
Site Plans
Stormwater
Survey
Wetlands
Wastewater
Water Supply
Contact
Clients & Testimonials
Resources
Menu
Home
About
Services
Construction
Land Planning
Pavement
Rehabilitation
Septic
Site Plans
Stormwater
Survey
Wetlands
Wastewater
Water Supply
Contact
Clients & Testimonials
Resources
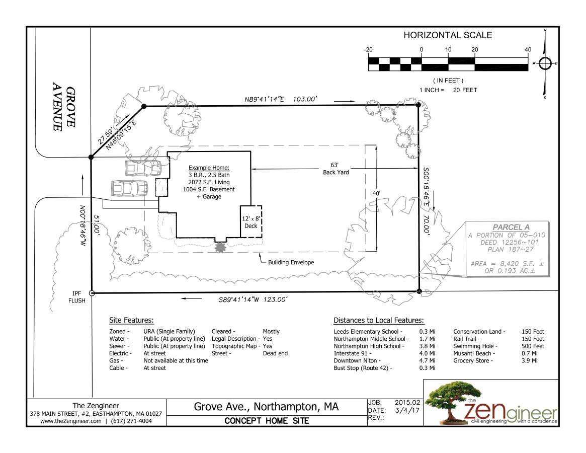
LandforSaleGroveAve
Leave a Comment
Cancel reply
Comment
Name
Email
Website
Contact the Zengineer
Let me know how I can help you!
Upload Relevant Documents (deeds, plans)
Send
Contact Info
87 Grove Avenue, Leeds MA 01053
413-282-8876
zengineerbucky@gmail.com